Ref 573052
Śródmieście, Pańska
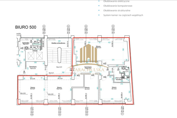
We are pleased to present an office for rent in the very center of Warsaw at Pańska Street. There is a reception desk and two elevators in the building. The office is located on one level and has an extensive layout of rooms adapted to office work, meetings and social and sanitary facilities. The height of most rooms is 2.70 m. The offices are located on both sides of the main corridor and have access to windows providing natural light. The layout of the rooms suggests the possibility of individual work, team work or use as offices.
Minimum lease period 3 years
Required 3-months deposit
Monthly rent plus VAT 23%
The office consists of:
– 5 rooms
– kitchen annex
– toilet
Additional cost:
– electricity consumption
– internet
Standard fit- out:
– air conditioning
– carpeting
– partition walls
– electrical wiring
– computer wiring
– camera system
Additionally parking spaces for rent in an external guarded parking lot 500 PLN








